案例名稱:東貿國際酒店公寓--新中式
案例時間:2015-07-27
客戶概述:
案例類型:樣板間軟裝配飾——新中式軟裝
所在地:燕郊
設計師:李莉
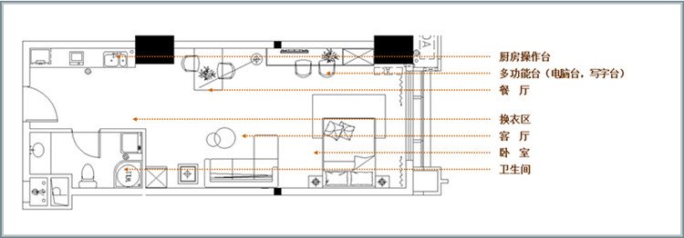
案例面積:48平方米
項目時間:2015年7月
空間軟裝主題:恬靜 自然
空間軟裝色彩:柚木色 象牙色、灰藍色
空間軟裝呈現:人文 典雅
空間軟裝風格:新中式
此空間為東茂國際酒店式公寓樣板間項目,整體空間運用現代簡潔的線條,融入中國風元素,具有古典傳承又有時尚現代之風。色彩上運用高級灰,象牙白搭配高貴淡雅黃,讓空間亮麗又不失典雅。頂部搭配線條簡潔的新中式風格燈具,再點綴山水寫意的掛畫使空間多一份雅致,客廳配飾具有優(yōu)雅造型的釣魚燈,使空間意境幽遠,穩(wěn)重中透出活潑,餐區(qū)墻面點綴精致的藍色金色搭配的裝飾瓷盤體現出居者生活品味,書桌上放懸掛隸書條幅文化涵養(yǎng),透出安然之態(tài),在這樣的空間之中定能感覺到中華之美。














聯(lián)系我們